Ligplaats Te Koop Terherne In Friesland Evt. Met Houseboat hoofdfoto: 1

Ligplaats Te Koop Terherne In Friesland Evt. Met Houseboat

Ligplaats Te Koop Terherne In Friesland Evt. Met Houseboat
Ligplaats Te Koop Terherne In Friesland Evt. Met Houseboat
Ligplaats Te Koop Terherne In Friesland Evt. Met Houseboat
Ligplaats Te Koop Terherne In Friesland Evt. Met Houseboat
+6
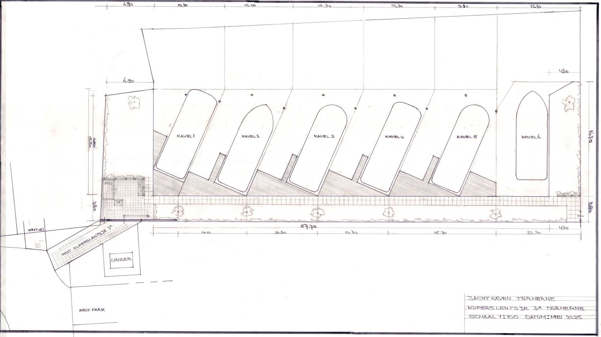
Ligplaatsen te koop voor recreatie houseboats met afmeting maximaal 13 bij 5

Unieke kans: Koopligplaatsen voor gedeeltelijk zelfvoorzienende ( Nordic Season house) boats in hartje Friesland!
De haven is momenteel in ontwikkeling maar de ligplaatsen kunnen al aangekocht worden.
Ligplaats 1 is 160.000 incl. BTW

Een bijzondere locatie voor watersportliefhebbers en particuliere investeerders die op zoek zijn naar rust, natuur én comfort.

Terherne is één van de mooiste toeristische dorpjes van Friesland – de haven ligt direct in het gezellige centrum, maar heerlijk rustig

Let op: alleen bestemd voor recreatief eigen gebruik – commercieel gebruik is niet toegestaan.

Prijsindicatie ligplaatsen: €118.000 – €160.000 btw betaald.
De grootte van de ligplaatsen is verschillend. 
We informeren u hier graag over.
De visual die u hier ziet geeft een beeld van hoe de ligplaatsen ongeveer gaan worden. Exacte gegevens en de maatvoering van de kavels volgt spoedig. 

Prijsindicatie boten: €140.000 - €170.000 excl. btw

Van de 6 plekken zijn er 2 verkocht en 1 onder optie. 
Plek 1 en 2 en 3 zijn nog vrij, zie tekening met maatvoeringen en nummers.

Heeft u interesse? Reageer snel! Inschrijving is nu al mogelijk. Wilt u een optie nemen of meer informatie?
Neem dan contact op met :Terry Bos 0031 (0) 6 41470689 of mail naar TerryBos@scheepsmakelaardijgoliath.nl

Merk: Ligplaats Te Koop Terherne
Type: In Friesland Evt. Met Houseboat
Lengte (m): 15.00
Breedte (m): 10.00
Diepgang (m): 1.00
Conditie: Nieuw
Modeljaar: 2025
Prijsstelling: Onder Bod
Valuta: Eur
BTW: Paid
Rompmateriaal: Hout
Doorvaarthoogte (m): 3.50
Ligplaats: Dorp In Hart Van Friesland
Ligplaats Land: NL
Aantal slaapplaatsen: 4

Onder bod

> Financier de Ligplaats Te Koop Terherne In Friesland Evt. Met Houseboat <

Lengte (m):
15
Breedte (m):
10
Diepgang (m):
1
Doorvaarthoogte (m):
3.5
Bouwjaar:

Deel deze advertentie

Scheepsmakelaardij Goliath - Hoofdkantoor

Hendrik Bulthuisweg 2

8606 KB Sneek

Ga naar de website

Contact opnemen

+31 6 54 72 3... Toon

Toon aanbod van Scheepsmakelaardij Goliath - Hoofdkantoor

Recent bekeken