Solstar Houseboat Basic 11-4,2 hoofdfoto: 1

Solstar Houseboat Basic 11-4,2

Solstar Houseboat Basic 11-4,2
Solstar Houseboat Basic 11-4,2
Solstar Houseboat Basic 11-4,2
Solstar Houseboat Basic 11-4,2
+15
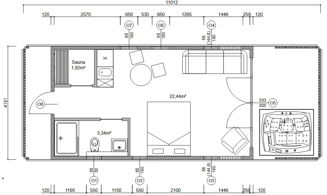
Houseboat met stalen romp. Simpele duurzame uitvoering, uit te breiden als floatinghotel kamer met Sauna en Jacuzzi.

Heel leuk klein formaat sollide houseboat met stalen romp, uitermate geschikt voor B&B verhuur met jacuzzi en sauna.
Deze houseboat is ontworpen en gebouwd door de Solstar GROUP, een bedrijf dat gespecialiseerd is in de productie van innovatieve houseboats, drijvende woningen en hotels op het water.
Begin 2025 werd het modulair drijvend hotel van de Solstar Group met succes gepresenteerd op de Dubai International Boat Show.

De houseboats worden gebouwd op speciaal ontworpen stalen rompen met het doel duurzaamheid, stabiliteit en multifunctioneel gebruik bieden. Hierdoor zijn de houseboat / units niet alleen ideaal als drijvende/varende huisjes, maar ook als drijvende kantoren, cafés en zelfs complete hotelstructuren geschikt.

Dankzij de solide stalen constructie, energiezuinige systemen en hoge thermische isolatie garandeert de houseboat het hele jaar door comfort, ongeacht de weersomstandigheden.
Dit basismodel zoals op de foto's te zien is nu te koop en gelijk leverbaar.
De jacuzzi en sauna zijn in deze demo aanwezig en al in de genoemde prijs inbegrepen.

Meerdere maatvoeringen en andere modellen zijn mogelijk.
Wilt u uitgebreide informatie mail of bel ons: Terry@scheepsmakelaardijgoliath.nl of 0031 (0) 641470689.



Algemeen
Overig:

Constructie:
Romp: staal (dikte 4-5 mm), versterkt met spanten en schotten; uitgerust met ingebouwde roestvrijstalen tanks voor vers en grijs water. Het ontwerp garandeert maximale veiligheid. Winterisolatie: wanden en dak met een warmteoverdrachtscoëfficiënt van minder dan 0,20–0,25 W/m²K.
Isolatie van buitenwanden: polyurethaan, voor een hoge thermische efficiëntie.
Gevel: De standaardversie maakt gebruik van gepoedercoate stalen bekleding met 30 jaar garantie. (hout, houtlook laminaat of effen filmlaag keuze bij nieuwbouw)
Ramen: PVC, dubbele beglazing
Enkele deur naar het terras aan de voorzijde.
De stahoogte binnen kan bij nieuwe houseboats tot 250 cm worden gemaakt. 
Extra opties mogelijk:|
• Hotelpakket – compleet interieur- en hoteluitrustingspakket, (€ 8.500)
• Roestvrijstalen leuningen en dakterraspakket (€ 17.450)
• Vaar- en navigatiepakket naar behoefte. Prijs op aanvraag.Stuurconsole kan binnen, op voorterras of op het dak naar keuze)


Accommodatie
Overig:

Vloer: vinyl, vocht- en slijtvast.
Badkamer: wastafel, douche, spiegel; glazen douchedeur.
Sauna: geïntegreerd in het interieur van de unit.
Terras aan de voorzijde: 2 m lang, uitgerust met hydromassagebad; composiet terrasplanken; stalen leuningen in zwarte/antracietkleur.
Achterterras: 1 m lang; toegangsdeur 80 cm breed; composiet terrasplanken; stalen leuningen in zwarte/antracietkleur.
Tuinmeubilair: inbegrepen (tafel + 4 stoelen).
Massagestoel: in de woonkamer.
Minikeuken: koffiezetapparaat, onderbouwkoelkast, inductiekookplaat met één pit.
Slaapkamer: bed van 140 × 200 cm met complete beddengoedset.
Woonkamer: salontafel, hoekbankbed met beddengoed, kledingkast.
Plafond: glanzend spanplafond – zwart.
Binnenmuren: gestoffeerde afwerking.
TV (op standaard)


Motor, electra, water
Warm water: Elektrische boiler 50 liter
Watertank & materiaal: inclusief pomp en aansluiting voor riool
Walstroom: Standaard
Overig:

Motor: elektrische motor of buitenboordmotor op benzine te kiezen als optie naar wens van de klant.
Zonnepanelen: minimaal 1800 W – energie voor 12 Volt elektrische systemen

Airconditioning met verwarmingsfunctie: ca. 2,2–2,5 kW

Vaste wateraansluiting is aanwezig.


€ 126.300,-

> Financier de Solstar Houseboat Basic 11-4,2 <

Lengte (m):
11
Breedte (m):
4.3
Diepgang (m):
0.5
Doorvaarthoogte (m):
Bouwjaar:

Deel deze advertentie

Scheepsmakelaardij Goliath - Hoofdkantoor

Hendrik Bulthuisweg 2

8606 KB Sneek

Ga naar de website

Contact opnemen

+31 6 54 72 3... Toon

Toon aanbod van Scheepsmakelaardij Goliath - Hoofdkantoor

Recent bekeken

Oud Huijzer 471 Tender

Oud Huijzer 471 Tender

4.9m
Polyester
12.950,-
Meer informatie