La Mare Houseboat Modern 12 hoofdfoto: 1

La Mare Houseboat Modern 12

La Mare Houseboat Modern 12
La Mare Houseboat Modern 12
La Mare Houseboat Modern 12
La Mare Houseboat Modern 12
+46
Moderne houseboat van La Mare houseboats, de Modern 12. Ruim 40m2 woonoppervlakte met luxe keuken en badkamer. Voorzien van Airco, dakterras, etc.

Modern 12 uit 2022 van eerste eigenaar met ligplaats in regio Zwolle. De huidige ligplaats kan overgenomen worden.

Deze modern 12 is zeer rijk uitgerust. Naast de standaard rijke uitrusting van de LA MARE werf is deze Modern 12 uitgerust met:

  • Airconditioning met warmtepomp (energie zuinig verwarmen) 
  • Keuken met combimagnetron, vaatwasser, koelkast met vriesvak en 2 pits kooktoestel.
  • Volledig vaarklaar met 2x 25pk Yamaha motoren en een boegschroef. Daarnaast uiteraard voorzien van navigatieverlichting, hoorn en achteruitvaarcamera
  • Energiezuinig door 6 zonnepanelen, 4x 230Ah accu's en een 5kw omvormer. 
  • Design pakket met Spanplafond en beklede wand in slaap- en woonkamer. 
  • Dakterras
  • Winter tank systeem
  • Volwaardige badkamer met grote douchecabine. 
  • Plissee gordijnen in woonkamer en slaapkamers. 
  • Gemeubileerd met hetgeen op de foto's is weergegeven. 

Bij interesse wordt ook een aluminium sloep, Explorer 580, met hybride voortstuwing (Yanmar 29pk + 3,5kw electro motor) ter overname aangeboden. 


2025 nieuwprijs in vergelijkbare uitvoering c.a € 285.000,- incl. BTW. 



Algemeen
Rompvorm: Catamaran met polyethyleen drijver
Besturing: X
Ramen: Dubbel veiligheidsglas, getint, in aluminium raamprofielen.
Bouwnummer: X
Overig: X
Accommodatie
Materiaal, kleuren: X
Gordijnen: X
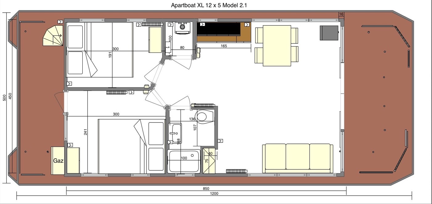
Verblijfsruimtes: Ruime salon met woonkeuken, volwaardige badkamer met douche, wastafelen toilet, 2 slaapkamers met ruimte voor een 2 persoonsbed en kledingkast.
Kooktoestel & brandstof: Gas
Motor, electra, water
Draaiuren: <10
Zonnepaneel: 6x 350wp
Warm water: Elektrische boiler Ariston
Watermaker: X
Overig:

Het vaarpakket is altijd optioneel. Hierbij kun u kiezen uit een minimaal vaarpakket tot een volwaardig pakket waarbij de boot goed varend is. Wij informeren u graag over de mogelijkheden.



Type interieur: Modern, light. Within the range offered, the design of window frames, floor
Merk: La Mare Houseboat
Type: Modern 12
Lengte (m): 12.00
Breedte (m): 5.00
Diepgang (m): 0.50
Conditie: Gebruikt
Bouwjaar: 2022
Prijsstelling: Onder Bod
Valuta: Eur
BTW: Paid
Rompmateriaal: Staal
Rompvorm: Catamaran Met Polyethyleen Drijver
Besturing: Stuurwiel
Doorvaarthoogte (m): 2.90
Ligplaats: Te Bezichtigen In Regio Zwolle. Call Us For A Visit T: +31 (0)85 483 2141
Werf gebouwd:
Merk: Yamaha
Bouwjaar motor: 2022
Vermogen in PK: 25pk
Aantal motoren: 2
Brandstof: Benzine
Aantal cilinders: 3
Max. snelheid: 6
Inhoud brandstoftank (liters): 90
Boegschroef: Electric
Aantal slaapplaatsen: 4
Aantal hutten: 2
Koelkast:
Vriezer:
Verwarming:
Airconditioning:
Kooktoestel: Gas
Zwemtrap:
Acculader:
Omvormer:
Navigatieverlichting:

Onder bod

> Financier de La Mare Houseboat Modern 12 <

Lengte (m):
12
Breedte (m):
5
Diepgang (m):
0.5
Doorvaarthoogte (m):
2.9
Bouwjaar:
2022

Deel deze advertentie

Contacteer verkoper

Recent bekeken